gff rainbow stripes

gini fischer/renderings

gff rainbow squares

Renovation Design

Whether you need to show a proposed property or document an existing structure. If you want to see the curb appeal before you commit to a renovation or just test-drive a new house color, we can help.

Taking the dimension of an existing structure, whether it is a single room or a whole house, and then producing three-dimensional models of possible renovation choices, allows the project to be considered on many fronts before moving forward with expensive work. I work in actual inches and feet and can produce plans, for review or use by the builder or architect, depending on the scope of the work.

Renovation Concepts for Restaurant

restaurant before renovations
restaurant after renovations

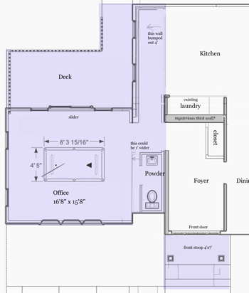
Expansion Concepts for Small Home

Artful Homes artwork
Artful Homes artwork
Artful Homes artwork
Artful Homes artwork
Artful Homes artwork

Renovation Concept Rendering of Fireplace and Shelves

Artful Homes artwork

Backyard Patio Concept Rendering

Artful Homes artwork

Small Addition to Antique Home

Artful Homes artwork
Artful Homes artwork
Artful Homes artwork
Artful Homes artwork

Commercial Renovation Concept Rendering

Artful Homes artwork
Artful Homes artwork

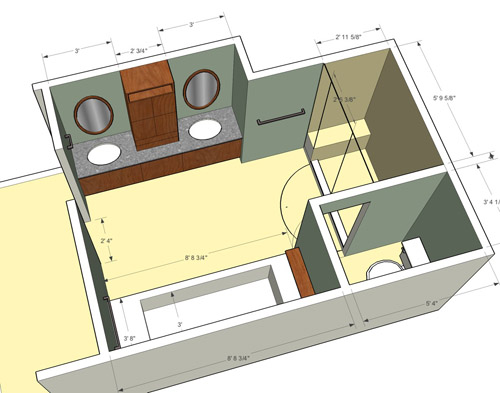
Master Bath Renovation

Artful Homes artwork

Small Kitchen Renovation

Artful Homes artwork
Artful Homes artwork